about-banner-image
Amine Scrubber Manufacturer

Amine Scrubbing System Manufacturer


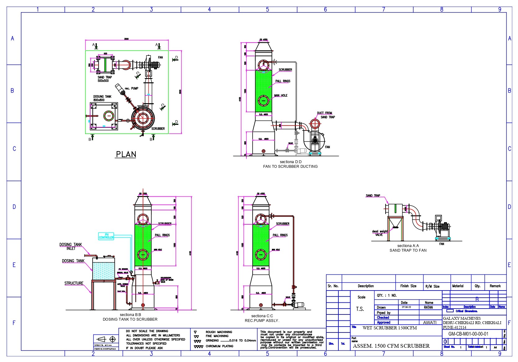
Amine scrubber is used to neutralise the amine gas used in cold box core shooter machines. When sand is shot in the core box, amine gas is passed through it. Amine acts as catalyst causing reaction that solidifies the core. This gas is then washed out of the core box with air. The exhausted amine gas is collected by a blower and is sent to the scrubber via ducts.
The scrubber contains diluted solution of sulphuric or phosphoric acid. Packed bed is provided with poly-propelene rings. The acid solution is pumped to the top of tank and sprayed on the rings by nozzles. The incoming amine gas being basic in nature reacts with the acid solution. This results in the formation of salt and water. After amine is neutralised, the clean air is exhausted to the atmosphere without causing any pollution.
Blower is provided to suck amine from machines to the scrubber. A centrifugal pump with motor is provided to re-circulate acidic solution. Sand trap is provided to capture sand coming with the incoming air. As the solution becomes more diluted due to reaction, more acid solution is automatically fed to the scrubber tank. The entire arrangement is made fully automatic with PLC control. We manufacture scrubbers with varying capacities from 500 to 15000 cfm.

Main Components

  • Inlet suction blower
  • Sand trap
  • Scrubbing chamber with diluted acid tank
  • Packed beds in scrubbing chamber
  • Outlet blower
  • Pump for acid re-circulation
  • Exhaust chimney

CONTACT US

  • Gat No.1567, Shelar Wasti, Dehu-Chikhali Road,
    Chikhali, Pune 412114
  • +919823834421
  • enquiry@galaxymachineindia.com